Mechanical Systems
ELECTRICAL
Thanks to its industrial heritage the building has a massively over sized three phase service. This is broken out into two meters, one for the 2nd floor unit and one for the rest of the building.
There is a master breaker panel in the garage and then a sub panel on each floor. The elevator has a dedicated sub-panel, as does the garage which feeds a couple 208VAC NEMA outlets that are great if you like welding or Bridgeport milling machines. :)
All electrical branch conduits and junction boxes are surface mounted to make it very easy to reconfigure.
PLUMBING
The building has a 4" main from the street with 55PSI test even in the late summer, so no booster pumps are needed.
There is an RPZ in the garage that is required because the building is sprinklered and is within 50 feet of the river (long ago they used to drop a hose in the river and pump water into the standpipe to fight fires!). This RPZ has to be inspected annually, which costs about $400.
There is a single water meter for all domestic use in the building (2nd floor unit is on the master meter) and a secondary meter for sprinkler system leaks (which has not budged yet!).
All domestic lines are copper, starting at 2" at the risers and dropping to 3/4" and 1/2" on branches.
SPRINKLER
The building is sprinklered throughout. All branches are surface mounted and all heads are exposed, with guards where they might accidentally get hit.
HEATING
The building is heated by two Weil McClain Ultra 230K condensing natural gas boilers. One in the basement that serves the 1st and 2nd floor and one on the 3rd floor that serves the 3rd, 4th, and 5th floors. These are very efficient boilers, especially when run at the low temperatures used by the radiant floor system.
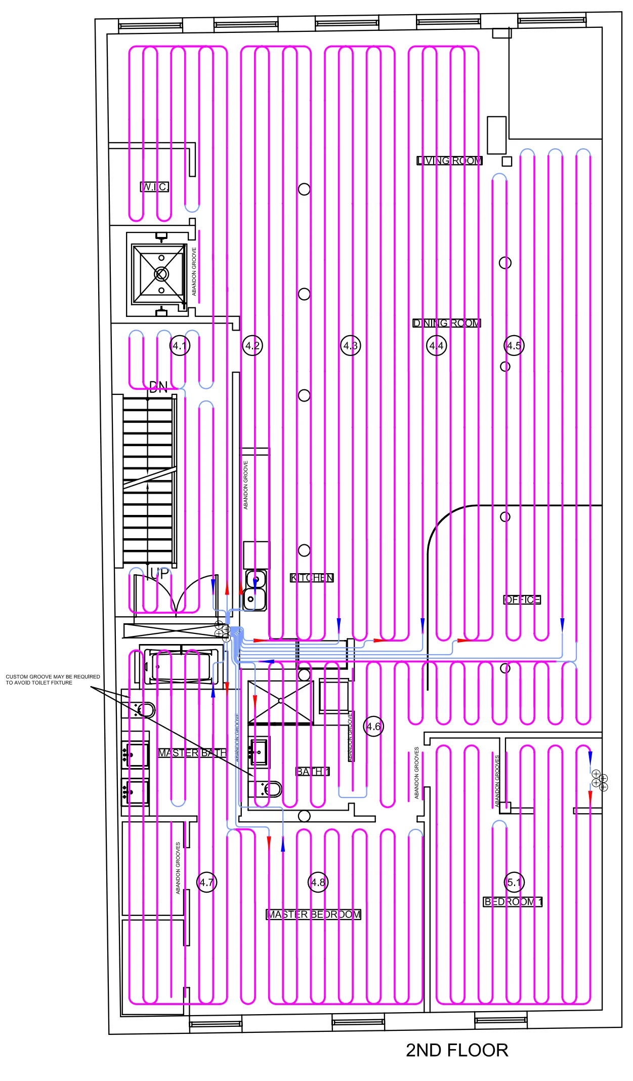
All heat is delivered via the Warmboard radiant sub-flooring system so there are no ducts or radiators. This system is extremely comfortable and we really miss it. The risers for the heating loops run inside a mechanical chase that goes from the basement to the bulkhead. The chase is behind the double doors on every floor adjacent to the stairs and also houses the vent stacks and low voltage cable runs.
There is a single pair of heating loop risers with valves between the 2nd and 3rd floor. This lets you run the whole building off of either single boiler in case there is ever a problem with the other one.
There are two distribution manifolds on each floor that break out the zones.
There is generally one zone per room and each zone has a thermostat.
COOLING
There are Fujitsu Halcyon ductless mini-splits on the 1st, 4th, and 5th floors. There was also window unit installed on the 2nd floor.
VENTILATION
Vent stacks for the bathrooms, trash room, and the laundry run up inside the chase to blowers on the roof of the bulkhead.
The vent stack for the elevator room runs just to the East of the elevator shaft to a blower on the main roof next to the bulkhead.
DOMESTIC HOT WATER
There is a hybrid heat pump water heater in the basement that serves the 1st and 2nd floor.
Floors 3,4, and 5 are serviced by an 85 gallon tank indirectly fired by the 3rd floor boiler.